Roxburgh Property Services

Property details

Templehill
Troon
KA10 6BE
£2,000 pcm
To Let
Chain Free, New Instruction
Commercial

Image Gallery

Chain Free, New Instruction

Property Summary

Located in the heart of Troon town centre, 20/22 Templehill is a magnificent retail unit with an array of potential. Previously occupied by a Veterinary Practice.

With a fully glazed frontage and access available front and rear, the potential uses for this property are endless.

Neighbouring stores include Troon's largest doctors surgery, chemist, hairdresser, food takeaway, antiques store and beauty store.

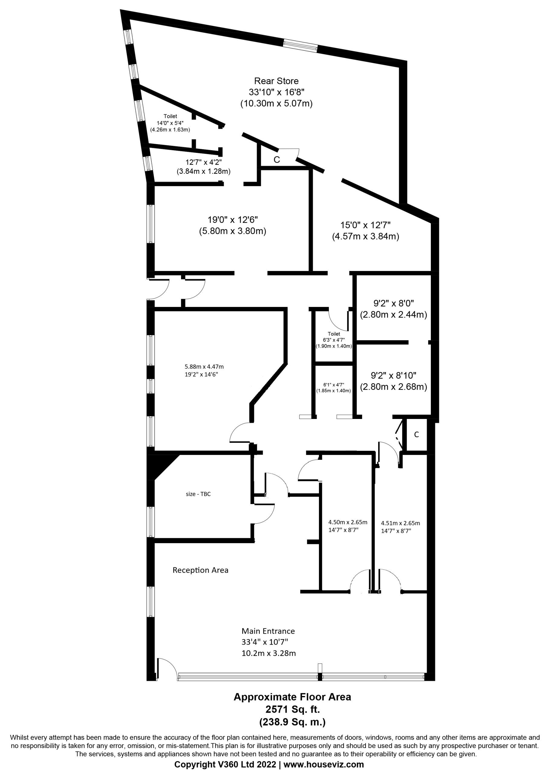
Property benefits from an large front reception area with 5 individual office/consultation rooms to the front, rear hallway,2 bathrooms, 2 rear rooms and one large storage room.

Rateable Value £14,500 - qualifies for Small Business Bonus Scheme, subject to occupier status.

Each party will be responsible for their own legal expenses.

Viewing essential to appreciate the sheer size and location of this fantastic unit.

EPC available on request.

Stamp Duty Calculator

Mortgage Calculator

Location

Floorplans

Floorplans

EPC Certificates

Video Tour

Brochures

Home Report